Aménagements de bureaux
Création de nouveaux bureaux,
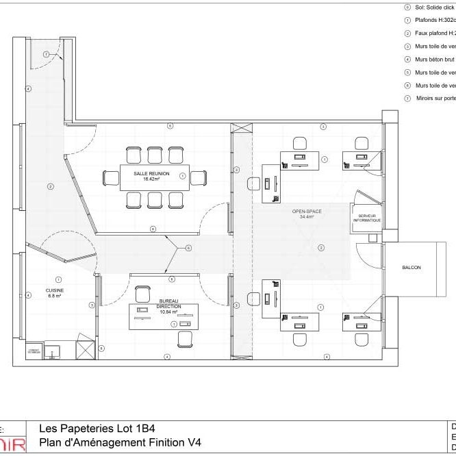
Pour le projet d’aménagement des bureaux de la société Datavenir, située près d’Annecy, ma mission était de concevoir un espace fonctionnel qui répond à des besoins spécifiques, tout en intégrant des éléments esthétiques et pratiques. Le projet incluait la création de nouveaux bureaux, d’une salle de réunion, d’un bureau de direction, ainsi qu’une cuisine et un serveur informatique.
L’un des aspects essentiels était de garantir que les bureaux respectent les normes d’accessibilité pour les établissements recevant du public (EPR).
Pour structurer l’espace tout en optimisant la lumière naturelle, des cloisons vitrées ont été utilisées, permettant d’isoler les bureaux sans couper le passage de la lumière. Cela crée une atmosphère de travail agréable, où chaque espace profite un maximum de l’éclairage naturel.
Le choix des matériaux a également été réfléchi. Le faux plafond de couleur carton équilibre la prédominance des teintes grisées des sols et des murs des façades Est et Sud, apportant une touche de chaleur à l’environnement de travail. Les profilés anthracite qui soulignent le faux plafond rappellent les encadrements des parois vitrées, ajoutant une cohérence visuelle à l’ensemble.
Au cœur de cet aménagement, le couloir peint dans un vert intense agit comme une oasis, dynamisant l’espace tout en apportant une note de fraîcheur. Cette couleur vive contraste avec les teintes neutres des autres éléments et crée un point focal stimulant pour les collaborateurs.
Chaque détail de ce projet a été pensé pour favoriser le bien-être des employés, tout en garantissant une fonctionnalité optimale et un design moderne. Le résultat final est un environnement de travail à la fois professionnel et inspirant, propice à la créativité et à la collaboration.








